Attico in vendita in centro Biella con terrazzo panoramico
- 395.000€
- 395.000€
Descrizione
- Attico - mansarda
- 3
- 3
- 1
- 352 m²
- 2000
Attico in vendita in centro Biella con terrazzo panoramico in categoria catastale A2
Situato nel cuore di Biella, in un moderno edificio del 2000 privo di barriere architettoniche, proponiamo in vendita un esclusivo appartamento duplex posto al 3° e 4° piano di circa 210 mq con terrazzi panoramici di circa 390 mq. L’edificio, recentemente ristrutturato nelle parti comuni e nella facciata, si presenta in ottime condizioni sia internamente che esternamente.
Per garantire il massimo della sicurezza l’accesso all’alloggio può avvenire tramite ascensore, con l’utilizzo di una chiave, senza la quale non è possibile accedere al 3° piano. In alternativa tramite le scale c’è una doppia porta blindata, la prima per accedere al pianerottolo del 3° piano e la seconda dell’alloggio.
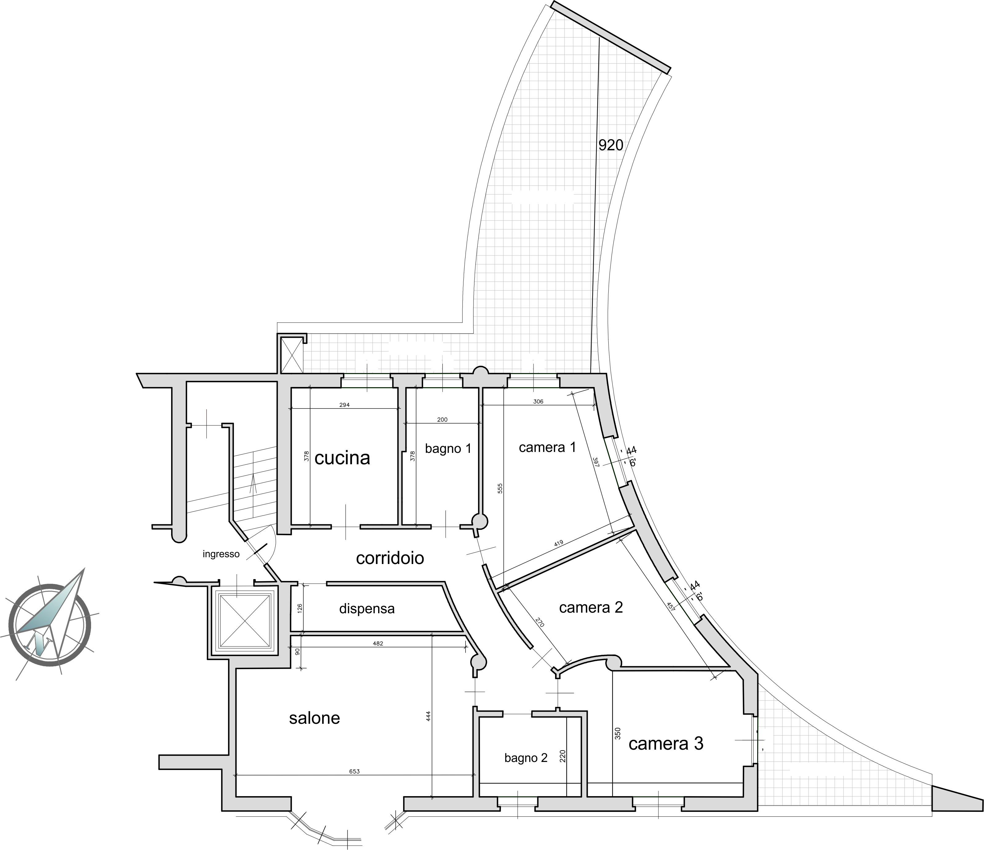
L’immobile si compone da ingresso su corridoio, sulla destra troviamo uno spazioso ripostiglio, ideale come guardaroba e dispensa, mentre sulla sinistra abbiamo la cucina abitabile che affaccia su un ampio terrazzo.
Proseguendo sul corridoio troviamo il primo bagno, finestrato e dotato di vasca da bagno e sanitari sospesi. Proseguendo troviamo le tre camere da letto, due delle quali con affaccio su terrazzo. Abbiamo poi il 2° bagno, anche questo finestrato, dotato di box doccia e sanitari sospesi. Infine abbiamo il soggiorno doppio, molto luminoso grazie all’ampia vetrata.
Tramite scala interna si raggiunge il 4° piano, dove abbiamo un mini appartamento composto da angolo cottura, camera, bagno con box doccia e accesso al terrazzo di oltre 300 mq.
Il terrazzo è dotato di due dehors, uno ospita una vasca idromassaggio per due persone, mentre l’altro è un dehors bioclimatico con aperture laterali e superiore automatizzate.
Il terrazzo è circondato da circa 60 alberi highlander, che non richiedono una grande manutenzione, grazie all’impianto di irrigazione automatico controllato da computer, e danno intimità e privacy. Inoltre sono presenti diverse piante decorative, come un ulivo, 2 aceri, 2 pungitopo, 2 oleandri, che, insieme alle piante da fiore, creano un’oasi di pace in centro città. creano un’oasi di pace in centro città.
Completano la proprietà una spaziosa cantina piastrellata di circa 30 mq e un ampio box auto doppio di circa 35 mq, dotato di serranda automatica.
L’immobile è stato completamente ristrutturato nel 2017 con finiture di pregio ed è dotato di:
– videocitofono
– porta blindata
– impianto di climatizzazione
– infissi in doppio vetro e alluminio
– zanzariere
– tapparelle motorizzate
– riscaldamento autonomo con caldaia a condensazione
– impianto domotico per la gestione del riscaldamento
– pavimenti in legno pregiato in corridoio, camere da letto e soggiorno
Questo appartamento rappresenta una soluzione abitativa unica nel suo genere, ideale per chi desidera vivere in un ambiente esclusivo e confortevole nel cuore di Biella.
Chiediamo, gentilmente, di essere contattati solo da persone seriamente interessate.
Dettagli
| Contratto: | Vendita |
| Tipologia: | Attico - mansarda |
| Prezzo richiesto: | € 395.000 |
| Superficie: | 352 mq |
| Locali: | 6 |
| Piano: | 3 |
| Camere da letto: | 3 |
| Bagni: | 3 |
| Garage e posto auto: | Garage doppio |
| Terrazzo e balcone: | Terrazzo e Balcone |
| Ascensore: | Sì |
| Cantina: | Sì |
| Arredamento: | No |
| Altre caratteristiche: | Condominio senza barriere architettoniche, infissi in doppio vetro/alluminio, porta blindata, impianto di climatizzazione, zanzariere, videocitofono, tapparelle motorizzate, riscaldamento autonomo, impianto domotico per riscaldamento, impianto di irrigazione automatico, cantina, terrazzo panoramica |
| Disponibilità: | Occupato dal proprietario |
| Tipo di proprietà: | Intera proprietà |
| Anno di costruzione: | 2000 |
| Spese di condominio: | € 175/mese |
| Informazioni catastali: | Classe A/2, Rendita € 1.320,07 |
| Stato immobile: | Ottimo/ristrutturato |
| Riscaldamento: | Autonomo |
| Climatizzazione: | Autonomo, freddo/caldo |
| Classe Energetica: | Media (B, C, D e sup.) |
Calcolo mutuo
-
Anticipo
-
Loan Amount
-
Monthly Mortgage Payment